Zurück
Büro
Gewerbe
Bildung
Städtebau

Berlin Decks

Büro und Industrie Campus "Berlin Decks"
Berlin

Büro- und Hochschulcampus in Berlin-Moabit

BERLIN DECKS ist ein innovativer Campus, der auf die tiefgreifenden Veränderungen zeitgenössischer Arbeits- und Produktionsprozesse reagiert. Auf einem ehemaligen Industrieareal direkt am Spreekanal vereint er Büroalltag, Produktion, Forschung, Lehre und Logistik zu einem zukunftsweisenden Arbeitsumfeld, das klassische Nutzungsgrenzen bewusst auflöst und neue Formen der Zusammenarbeit ermöglicht.
Büro- und Gewerbecampus BERLIN DECKS vom Ufer aus gesehen
Die städtebauliche Anordnung der Gebäude, ihre klare und offene Erschließung sowie die Verknüpfung mit Freiräumen und begrünten Terrassen fördern Austausch, Sichtbarkeit und informelle Begegnungen. Kurze Wege, Blickbeziehungen und vielfältig nutzbare Übergangszonen unterstützen spontane Zusammenarbeit und begünstigen Synergien zwischen Nutzungen, die auf den ersten Blick kaum vereinbar erscheinen.
Ein umlaufendes, alle vier Gebäude verbindendes „Promenadendeck“ befindet sich über dem zweigeschossigen Sockel, in dem Logistik- und Industriehallen angeordnet sind. Durch die Zurückversetzung der oberen Gebäudeteile auf dem Sockel entstanden Terrassen und Dachgärten, die allen zur Verfügung stehen und hohe Aufenthaltsqualität bieten.
Büro- und Gewerbecampus BERLIN DECKS Perspektive Hof
Das Gebäudeensemble öffnet sich im Nordosten mit einem „Eingangsplatz“ zum Wasser hin und wird durch eine Fußgängerbrücke an die anliegenden städtischen Quartiere angebunden. Von Eingangsplatz gelangt man in den „Testing-Ground“ und über eine große Außentreppe auf das „Promenadendeck“ im 1.Obergeschoss. Beide Bereiche sind öffentlich zugänglich.
Dank der gestaffelten Höhenentwicklung fügt sich das Projekt selbstverständlich in die Umgebung ein. Sie verleiht den Campus ein unverwechselbares, eigeneständiges Erscheinungsbild.
Campus BERLIN DECKS, Foto: Stefan Müller
Büro- und Gewerbecampus BERLIN DECKS Innenraum Manufaktur
Büro- und Gewerbecampus BERLIN DECKS Produktionshalle
Büro- und Gewerbecampus BERLIN DECKS Labor
Büro- und Gewerbecampus BERLIN DECKS Promenadendeck
Der neue Campus bietet dank differenzierter Gebäudestrukturen flexible Räume, die sich an die individuellen Bedürfnisse der Mieter richten - Showrooms, Lager, Werkstätten, Büros oder Coworking. Die eigene architektonische Charakteristik mit hohen Decken, flexiblen Bodentraglasten und funktionalen Erschließungsmöglichkeiten macht die Flächen ideal für die komplexen Anforderungen der Industrie 4.0.
Büro- und Gewerbecampus BERLIN DECKS Innenhof
Ein besonderes Merkmal des neuen Campus ist die Fassade, die mit einer vorgehängten, grünen Keramikbekleidung realisiert wird. Bei der Konzipierung der Holz-Hybrid Konstruktion wurde großer Wert auf Nachhaltigkeit gelegt. Auch die Außenwände erhalten eine Holzelement-Unterkonstruktion zur Reduzierung des CO2 Abdrucks. Heizung und Kälte erfolgt über Fernwärme und zusätzliche Photovoltaikanlagen auf den Dächern. Die Zertifizierung DGNB Gold wird angestrebt.
Büro- und Gewerbecampus BERLIN DECKS Musterfassade
Büro- und Gewerbecampus BERLIN DECKS Musterfassade
Büro- und Gewerbecampus BERLIN DECKS Fassadendetail
Büro- und Gewerbecampus BERLIN DECKS - Innenhof
Büro- und Gewerbecampus BERLIN DECKS Luftbild
Büro- und Gewerbecampus BERLIN DECKS Lageplan
Büro- und Gewerbecampus BERLIN DECKS - Baustellenupdate 2024
Büro- und Gewerbecampus BERLIN DECKS Längsschnitt
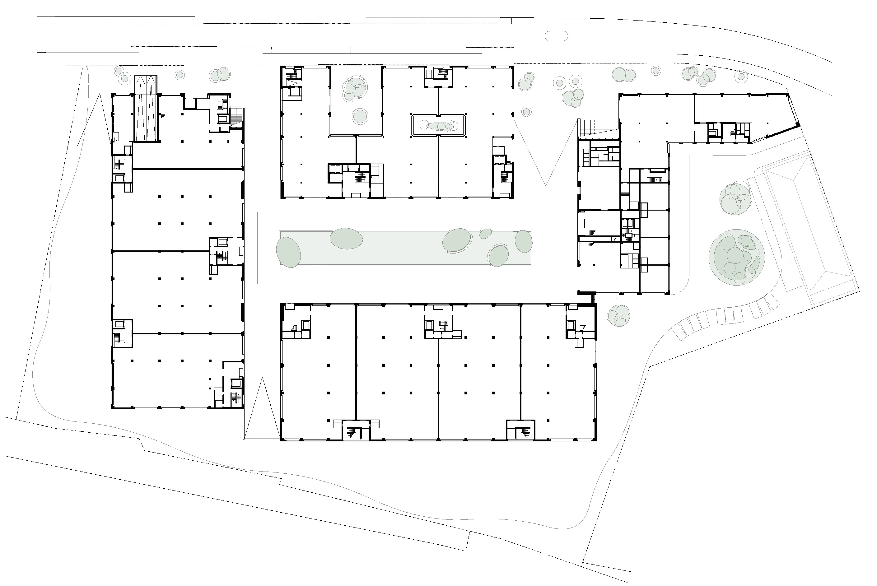
Büro- und Gewerbecampus BERLIN DECKS Grundriss 00
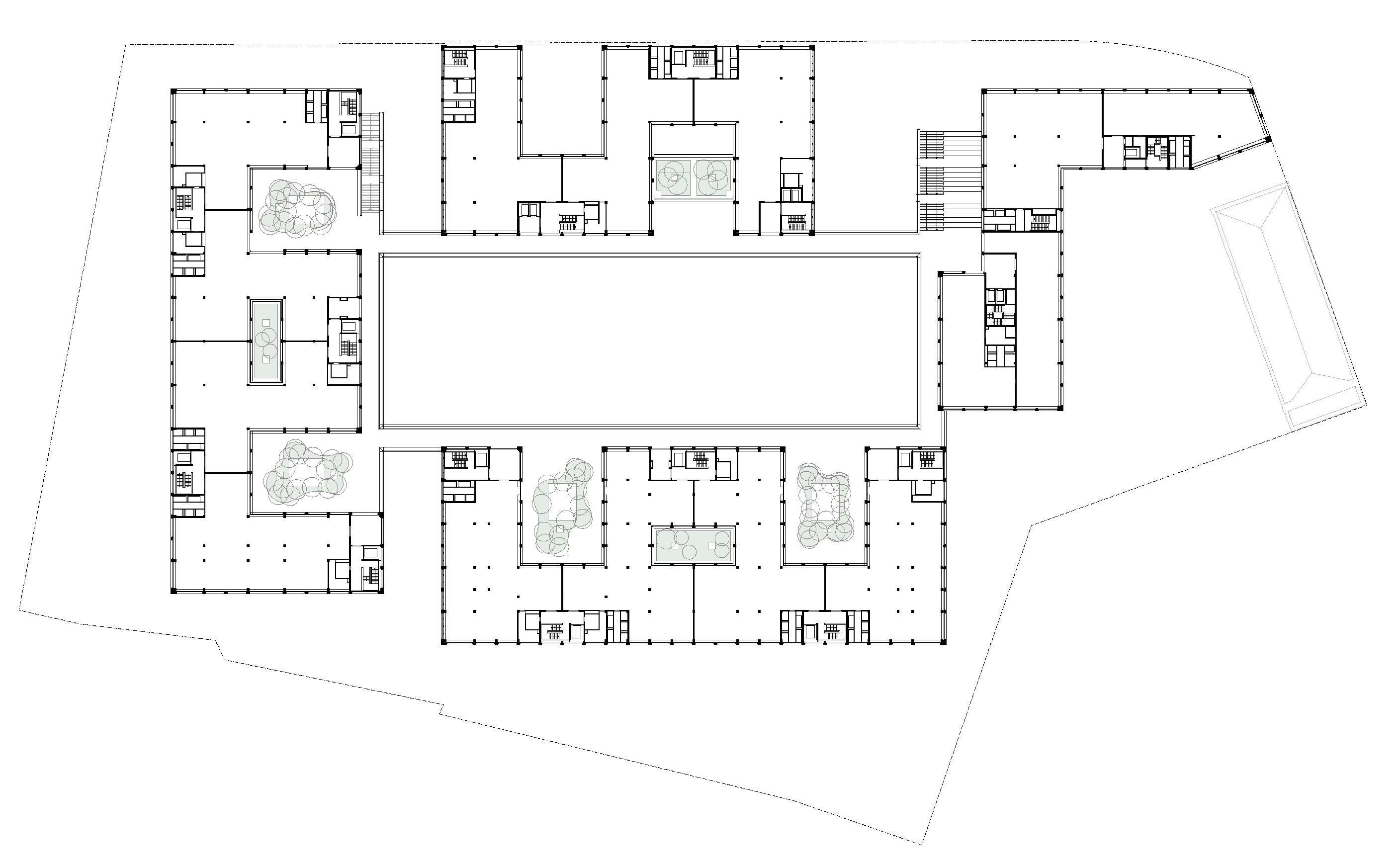
Büro- und Gewerbecampus BERLIN DECKS Grundriss 01
Büro- und Gewerbecampus BERLIN DECKS Innenhof
Realisierung
BGF
54.000 m²
Objektadresse

Friedrich-Krause-Ufer
13353 Berlin
Deutschland

Auftraggeber
Beos AG
Generalplanung
sowie Objektplanung Gebäude Lph 1-4, 5 + 8 (teilw.)
Projektleitung
Torsten Glasenapp, Tom Werner, Gerhard Karschner
Bauleitung
Jörg Sabien
Mitarbeiter Planung

Thomas Kaubisch, Constanze Fleischer, Yanjun Liu, Luisa Managò, Corinna Müllendorff, Victoria Strel, Annkatharin Bei der Wieden, Elisa Schieseck, Mark Block, Matthias Bednasch

Fachplaner

Projektsteuerung: Drees & Sommer SE; Generalunternehmer: Implenia Hochbau GmbH; Tragwerksplanung: GSE Ingenieur - Gesellschaft mbH Saar, Enseleit und Partner; TGA: Heimann Ingenieure GmbH; Freianlagenplanung: Vogt Landschaft GmbH; Fassadenplanung: Ingenieurbüro Franke GmbH & Co. KG; Verkehrsplanung: fpb - Freie Planungsgruppe Berlin GmbH

Visualisierung
Bloomimages