Zurück
Verwaltung
Restaurierung
Umbau

Dienstsitz der Bundesanstalt für Immobilienaufgaben

Sanierung des Berliner Dienstsitz der Bundesanstalt für Immobilienaufgaben - BImA - Innenhof © André Kirchner / BBR
Berlin

Sanierung des Berliner Dienstsitz der Bundesanstalt für Immobilienaufgaben (BImA)

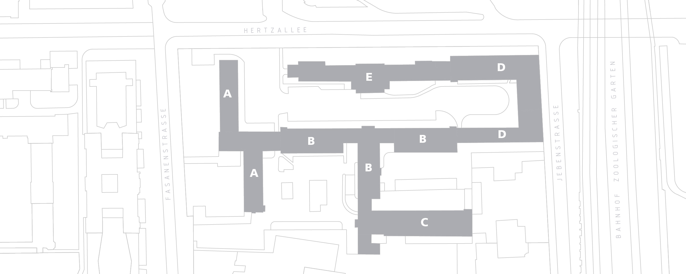
Das denkmalgeschützte Ensemble umfasst fünf historische Gebäude, die in drei wesentlichen Bauphasen entstanden: um die Jahrhundertwende (Bauteil E), in den 1920er- und 1930er-Jahren (Bauteile B, C und D) sowie in den 1950er-Jahren (Bauteil A). Der Gebäudekomplex mit einer Fläche von 46.000 Quadratmetern dient derzeit als Berliner Dienstsitz der Bundesanstalt für Immobilienaufgaben (BImA) und bietet Arbeitsplätze für rund 600 Mitarbeiter. Während des laufenden Betriebs wird die Anlage in mehreren Bauabschnitten umfassend saniert und modernisiert. Ziel ist es, die Wirkung des gesamten Ensembles zu stärken und gleichzeitig die Qualität der einzelnen Gebäude hervorzuheben. Die Fertigstellung ist für 2030 geplant.
Sanierung des Berliner Dienstsitz der Bundesanstalt für Immobilienaufgaben - BImA - Lageplan
Sanierung des Berliner Dienstsitz der Bundesanstalt für Immobilienaufgaben - BImA - Fassade "Cranzbau" © André Kirchner / BBR
Der älteste erhaltene Gebäudeteil ist der sogenannte Cranzbau, der 1905 als ballistisches und chemisches Laboratorium der ehemaligen Militär-Technischen Akademie errichtet wurde. Als militärische Ausbildungsstätte ist das neobarocke Gebäude mit seinem repräsentativen Eingangsbereich nicht zur Straße, sondern zum Innenhof hin ausgerichtet. Der Name des Gebäudes ehrt Carl Cranz, den damaligen Leiter der Akademie. In den Jahren 1928 und 1937 wurde der Komplex um drei weitere Gebäude für das Heereswaffenamt erweitert. Das jüngste Gebäude auf dem Gelände, errichtet 1956 an der Fasanenstraße, diente der Sondervermögens- und Bauverwaltung.
Sanierung des Berliner Dienstsitz der Bundesanstalt für Immobilienaufgaben - BImA - Axonometrie
Sanierung des Berliner Dienstsitz der Bundesanstalt für Immobilienaufgaben - BImA - Treppenhaus Bauteil B © MRA
Sanierung des Berliner Dienstsitz der Bundesanstalt für Immobilienaufgaben - BImA - Treppenhaus Bauteil B © MRA
Sanierung des Berliner Dienstsitz der Bundesanstalt für Immobilienaufgaben - BImA - Treppenhaus  © MRA
Sanierung des Berliner Dienstsitz der Bundesanstalt für Immobilienaufgaben - BImA - Treppenhaus  © MRA
Sanierung des Berliner Dienstsitz der Bundesanstalt für Immobilienaufgaben - BImA - Fassade © André Kirchner / BBR
Realisierung
Kosten
83.000.000,- EUR
BGF
46.000 m²
Leistungsphasen
2-9, Fünf Bauabschnitte (A bis E)
Objektadresse

Fasanenstraße 87
10623 Berlin
Deutschland

Auftraggeber
Bundesrepublik Deutschland, vertreten durch das BBR
Nutzer
Bundesanstalt für Immobilienaufgaben (BImA)
Projektleitung
Matthias Anke, Jan Schrenk
Bauleitung
Christoph Broke, Astrid Kneib, Claas-Thilo Claasen, Janis Ekrot, Kerstin Wegener
Mitarbeiter Planung

Ljudmila Friesen, Laura Labalestra, Luisa Managò, Charlotte Perschmann, Maximilian Springer, Annkatharin Bei der Wieden

Fachplaner

Projektsteuerung: Diederichs Projektmanagement AG & Co. KG, Berlin; Planung HLS: Ingenieur Team Versorgungstechnik GmbH, Berlin: Elektroplanung: Ruß Ingenieurgesellschaft mbH, Berlin; Landschaftsplanung: k1 Landschaftsarchitekten Kuhn Klapka GmbH, Berlin;  Tragwerksplanung: Ingenieurbüro Rüdiger Jockwer GmbH, Berlin; Brandschutz: Ilko-M. Mauruschat GmbH für Architektur &
Brandschutz, Potsdam; Barrierefreiheit: raumleipzig architekten morkramer schnieber voříšková, PartG mbB, Leipzig; Bauphysik: Ingenieurbüro Axel C. Rahn GmbH, Berlin; Müller-BBM GmbH, Dresden; 

Fotos
André Kirchner/ BBR; Müller Reimann Architekten