Zurück
Bildung

Erweiterung Max-Planck-Institut für evolutionäre Anthropologie (EVAN)

Erweiterung Max-Planck-Institut für evolutionäre Anthropologie (EVAN) - Blick vom Deutschen Platz
Leipzig
Der Deutsche Platz ist ein zentraler Stadtraum Leipzigs und von hoher städtebaulicher, historischer und institutioneller Bedeutung. Wissenschafts- und Kultureinrichtungen wie das Max-Planck-Institut, die Deutsche Nationalbibliothek und die BioCity prägen den Standort. Der geplante Erweiterungsbau EVAN des Max-Planck-Instituts fügt sich in diesen Kontext ein und trägt zur räumlichen Vervollständigung des Platzes bei.

Der Neubau folgt der gekurvten Baulinie des Deutschen Platzes und orientiert sich in Höhe und Maßstäblichkeit an der umgebenden Bebauung. Gezielt freigehaltene Räume zum Bestandsgebäude und zu möglichen künftigen Bauten sichern die Eigenständigkeit des Baus im städtebaulichen Kontext. Eine funktional notwendige Verbindung zum Bestandsgebäude erfolgt über ein zurückgesetztes Brückenbauwerk.
Erweiterung Max-Planck-Institut für evolutionäre Anthropologie (EVAN) - Diagramm
Erweiterung Max-Planck-Institut für evolutionäre Anthropologie (EVAN)
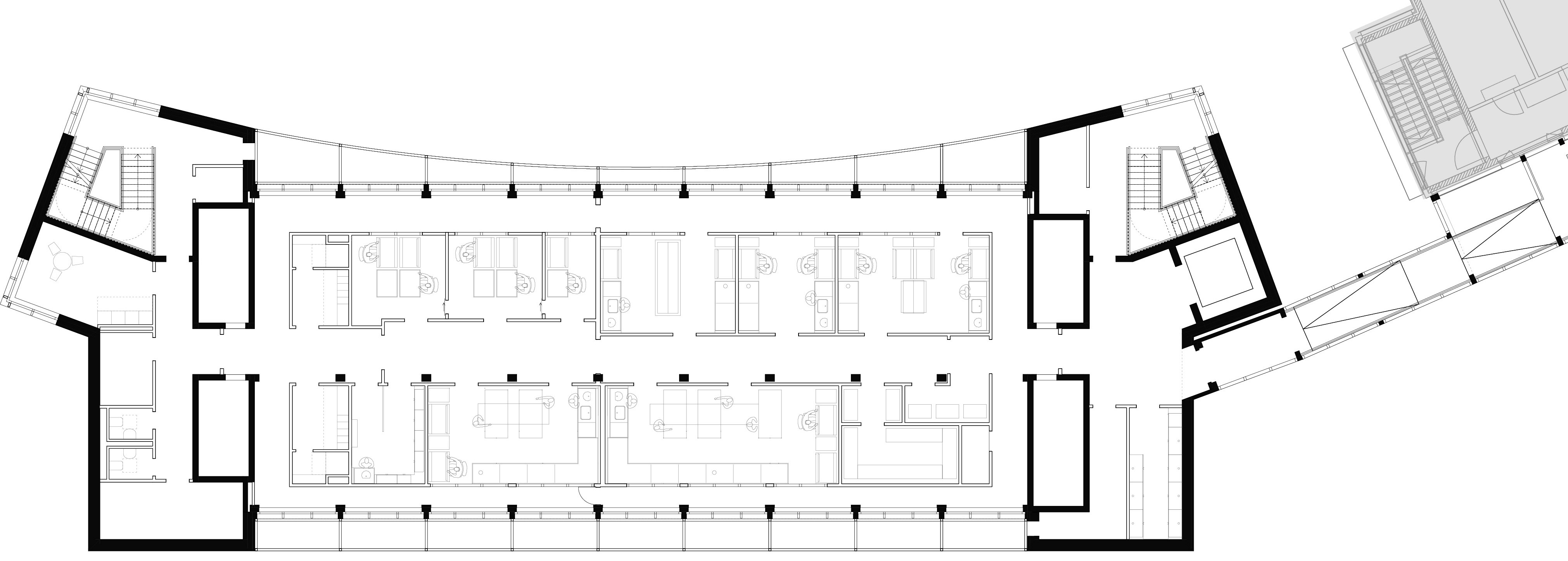
Das Gebäude ist als flexibel nutzbares Laborgebäude mit modularer Struktur konzipiert. Eine Mittelspange mit Labor- und Büronutzungen wird von Servicetürmen für Erschließung und Versorgung flankiert. Der identische Aufbau der Geschosse gewährleistet eine hohe langfristige Anpassungsfähigkeit. Die Funktionsbereiche umfassen Labor- und Büroflächen in den Obergeschossen sowie einen hochflexiblen Reinraum bis ISO-Klasse 5.
Erweiterung Max-Planck-Institut für evolutionäre Anthropologie (EVAN) - Grundriss 2. OG Laborbereich
Erweiterung Max-Planck-Institut für evolutionäre Anthropologie (EVAN) - Grundriss 3. OG - Reinraum
Die architektonische Gestaltung und Fassadenstruktur ergeben sich konsequent aus dem inneren Aufbau des Gebäudes. Ein klar ausgebildeter Sockel verankert den Baukörper im Stadtraum. Darüber vermittelt ein vorgelagerter Servicegang zwischen der gekurvten Platzkante und der orthogonalen Organisation der Laborbereiche. Filigrane Metallkonstruktionen und begrünbare Fassadenelemente gliedern die Fassadenflächen und verleihen dem Baukörper eine feingliedrige, dem Stadtraum angemessene Maßstäblichkeit.
Erweiterung Max-Planck-Institut für evolutionäre Anthropologie (EVAN) - Fassadenschnitt
Das Gebäude wird als Stahlbetonmassivbau mit Flachdecken errichtet. Ein nachhaltiges Energie- und Klimakonzept mit Wärmepumpen, Erdsonden, Wärmerückgewinnung, PV-Anlage und optimierter Gebäudehülle zielt auf ein BNB-Zertifikat „Silber“ ab. Neben dem energieeffizienten Betrieb werden durch modulare Bauweise und Recyclingbeton auch die grauen Emissionen reduziert.
Erweiterung Max-Planck-Institut für evolutionäre Anthropologie (EVAN) - Ansicht Deutscher Platz
Erweiterung Max-Planck-Institut für evolutionäre Anthropologie (EVAN) - Lageplan
Verfahrensart
VGV-Verfahren 2025, 1. Rang
Realisierung
Kosten
25.000.000,- EUR
BGF
5.500 m²
Grundstücksfläche
5.300 m²
Zertifizierung
BNB Silber
Objektadresse

Deutscher Platz 6
04103 Leipzig
Deutschland

Auftraggeber
Max-Planck-Gesellschaft zur Förderung der Wissenschaften e.V.
Projektleitung
Alex Buchhofer, stellv. Elisa Schieseck
Mitarbeiter Wettbewerb

Jonas Houba, Tobias Bloh, Tom Werner, Raphael Fleischmann

Fachplaner

Projektsteuerung: tp management GmbH, Leipzig; Tragwerksplanung / Brandschutz / Bauphysik / Raumakustik: GSE - Saar, Enseleit und Partner Ingenieur-Gesellschaft mbH, Berlin; Laborplanung: IfG GmbH, Leipzig; Planung TGA HKLS: WPW Leipzig GmbH; Planung TGA ELT: Klett Ingenieur GmbH, Meißen; TGA Gebäudeautomation: DERU Planungsgesellschaft, Dresden; Simulation: Transsolar Energietechnik GmbH, Stuttgart; BNB-Koordination: CRES Consult GmbH, Berlin; Freianlagenplanung: HEINISCH Landschaftsarchitekten, Weimar