
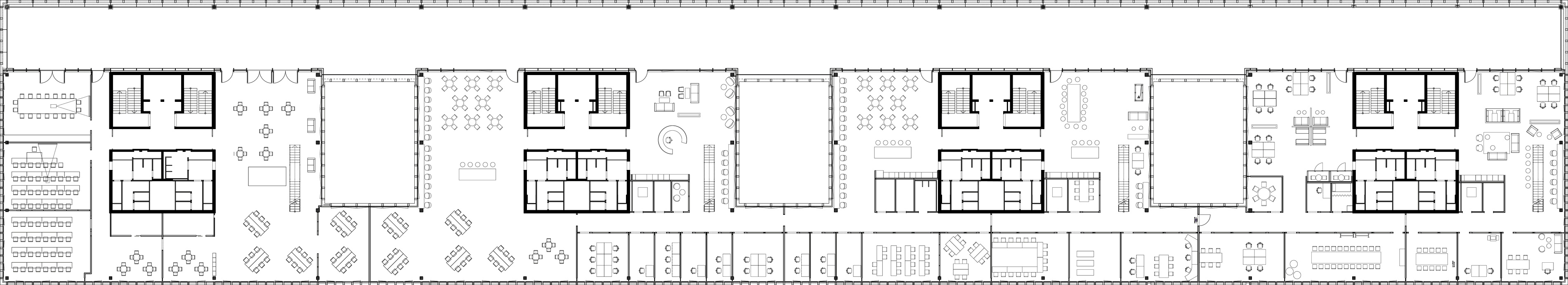
Büro- und Hochschulcampus in Berlin-Neukölln
Sonnenallee
12057 Berlin
Deutschland
Jörg Emes
Mark Block, Agnieszka Jedrzejak, Laura Labalestra, Corinna Müllendorff, Elisa Schieseck, Jonas Tröscher; In Arbeitsgemeinschaft mit Realace GmbH;
Tragwerksplanung: Engelsmann Peters, Stuttgart; Techn. Gebäudeausrüstung: Plan B-Beratende Ingenieure, Berlin; Brandschutz: IB Knoth, Berlin; Bauphysik: Ingenieurbüro Axel C. Rahn, Berlin